Загородный дом Hi217 ind.

Проект загородного дома Hi217 ind — 217 м², 1 этаж

Архитектура

Уютный двухэтажный дом с вторым светом, созданный в сочетании альпийского и скандинавского стиля прекрасно вписывается в природный ландшафт. Сочетание металла, дерева и камня создает одновременно и ощущение домашнего уюта и соответствие современным тенденциям.

О проекте

  • Площадь - 217м2
  • Количество комнат - 5 комнат
  • Этажность - 1 этаж
  • Кухня-гостинная с вторым светом, комбинированная отделка

Двускатная кровля с фальцем задаёт основной силуэт дома, а отделка стен деревом и сланцем идеально вписывается в лесное окружение участка.

Второй этаж выполнен в виде антресоли - с него открывается вид на гостиную и террасу через панорамное остекление, а небольшая односкатная кукушка позволяет использовать дополнительную площадь.

Сочетание металла, дерева и камня - это без проигрышная смесь и характер.

Натуральное дерево в отделке фасада задает основной стиль и философию.

Когда дом выглядит и современно и одновременно по-домашнему уютно.

Планировка

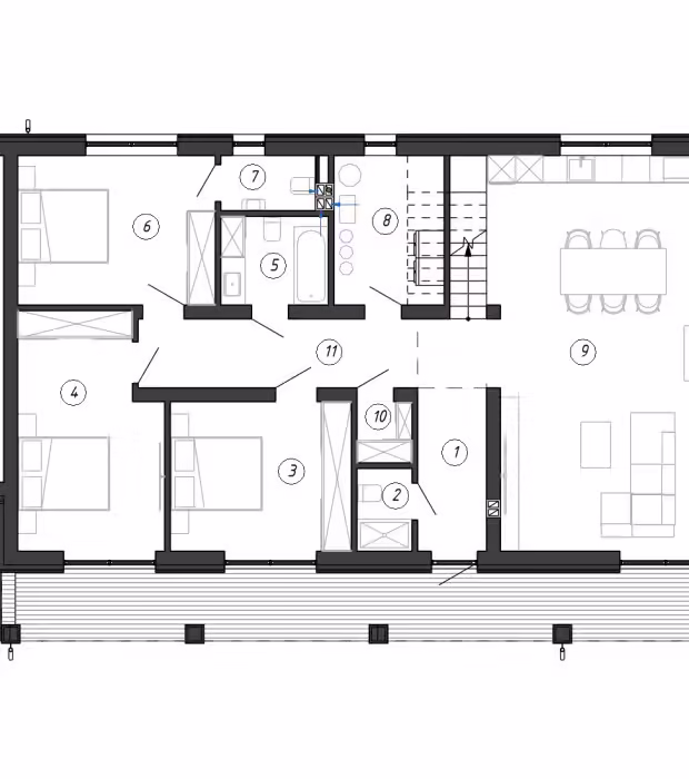
1 этаж

1. Прихожая - 5.3м2

2. Лапомойка - 2.2м2

3. Спальня - 12.8м2

4. Спальня - 15.4м2

5. Санузел - 4.5м2

6. Спальня - 14.0м2

7. Санузел - 2.5м2

8. Котельная - 7.8м2

9. Кухня-гостиная - 45.5м2

10. Кладовая - 1.6м2

11. Коридор - 9.1м2

12. Терраса - 17.7м2

13. Гараж - 28.4м2

Итого:- 166.8м2

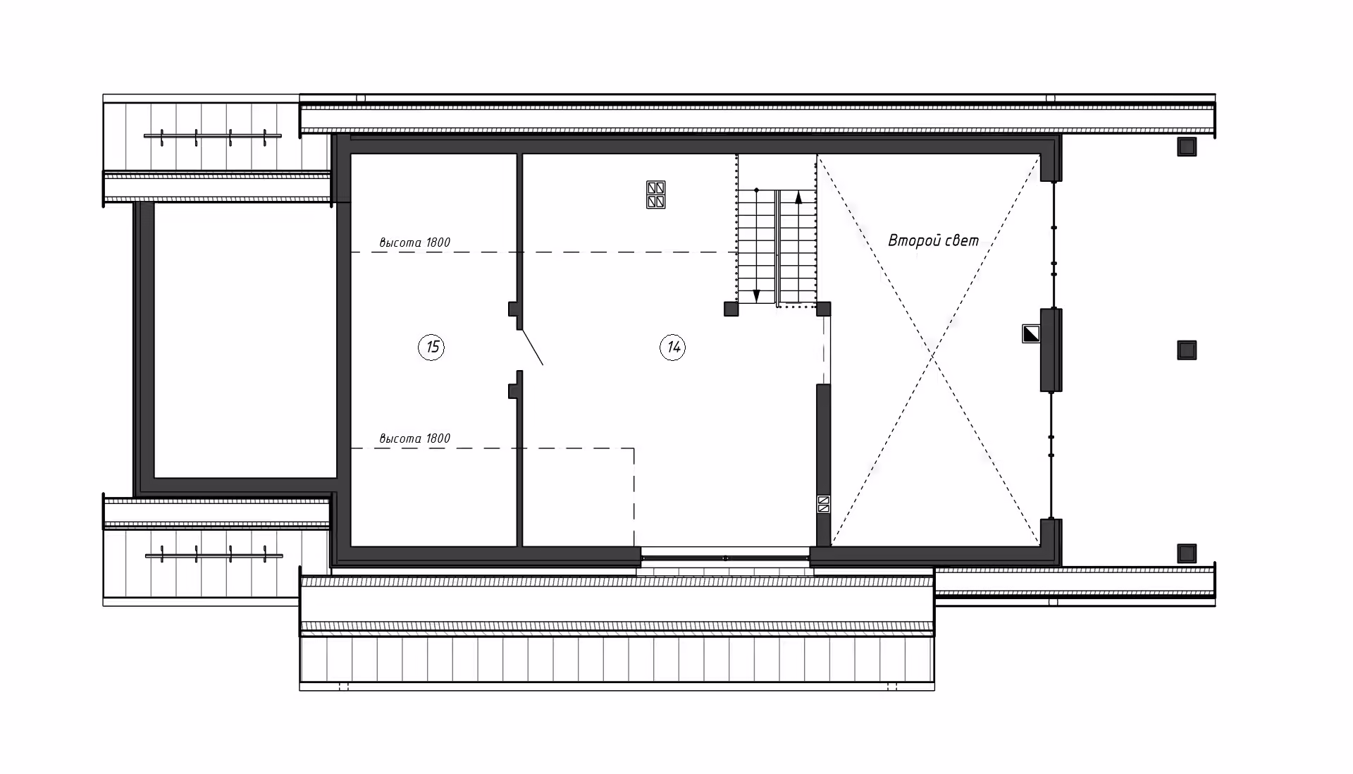
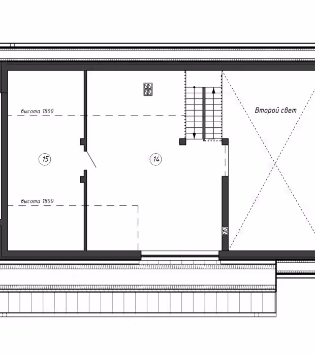
мансардный этаж

1. Детская игровая - 34.5м2

2. Кладовая - 15.5м2

Итого:- 50м2

Консультация
по индивидуальному
проектированию.

Или позвоните нам сами +375296283628

Похожие решения.

Загородный дом Hi203
203m2, 5 комнат, 1 этаж
Загородный дом Hi267 ind.
267m2, 5 комнат, 1 этаж
Загородный дом Hi172
172m2, 5 комнат, 1 этаж
Загородный дом Hi238&SPA
238m2, 5 комнат, 1 этаж