Загородный дом Hi165

Загородный дом Hi165 — проект дома с террасой

Архитектура

Дом на склоне всегда смотрится интересно, но добавляя консольный навес и террасу со свесами мы получаем невероятную динамику на фасаде! Максимальное видовое раскрытие на внутренний двор подчеркивается высокими панорамными окнами со структурными углами. Хоз.постройка соединена с домом навесом, который формирует въездную группу и визуально удлиняет фасад. Основная площадь дома отдана кухне-гостиной и блоку мастер спальни.

О проекте

  • Площадь - 165м2
  • Количество комнат - 3 комнаты
  • Этажность - 1 этаж

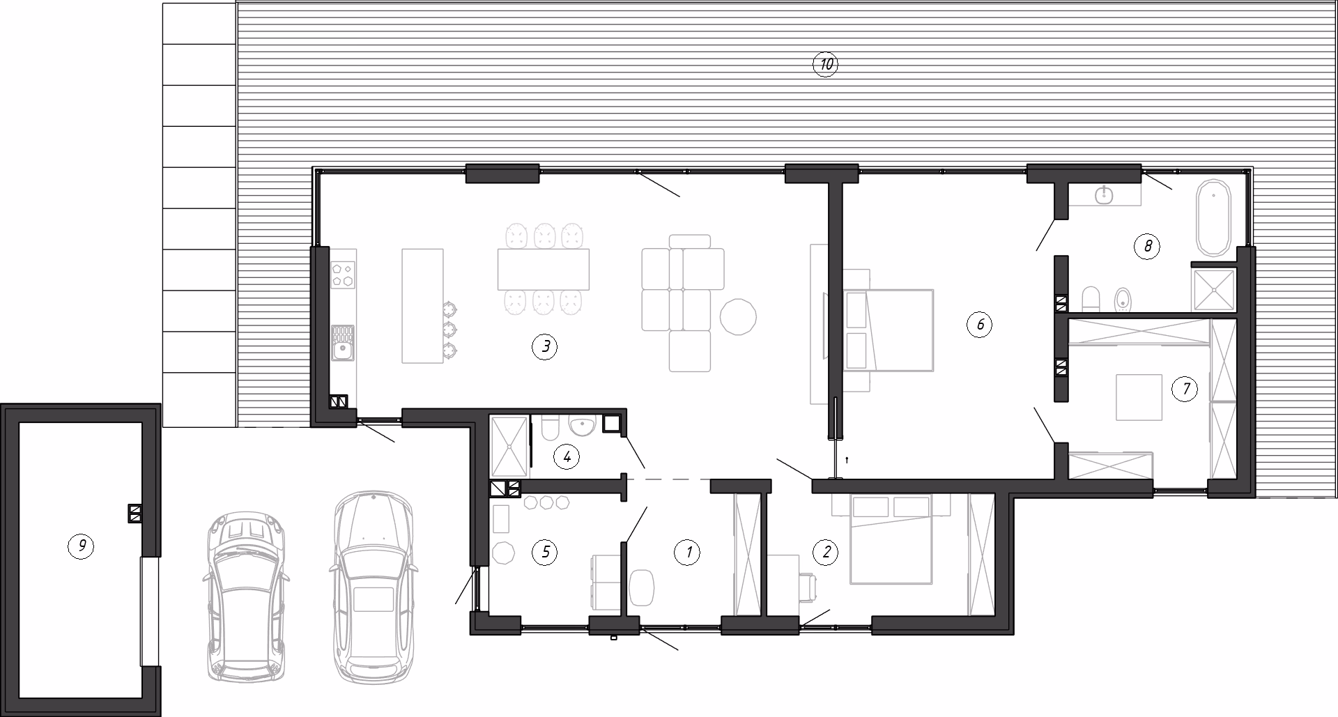
Планировка

1 этаж

1. Прихожая - 8.5м2

2. Спальня - 13.5м2

3. Кухня-гостиная - 61.1м2

4. Санузел - 4.1м2

5. Топочная - 7.8м2

6. Мастер-спальня - 30.2м2

7. Гардеробная - 13.1м2

8. Санузел - 10.5м2

9. Хоз. помещение - 16.3м2

10. Терраса - 33.8м2

Итого:- 198.9м2

Консультация
по индивидуальному
проектированию.

Или позвоните нам сами +375296283628

Похожие решения.

Загородный дом Hi139
139m2, 4 комнаты, 1 этаж
Загородный дом Hi179 ind.
179m2, 4 комнаты, 1 этаж
Загородный дом Hi203
203m2, 5 комнат, 1 этаж
Загородный дом Hi203&SPA
203m2, 4 комнаты, 1 этаж