Загородный дом Hi541&SPA

Загородный дом Hi541SPA — 541 м², собственный SPA-комплекс

Архитектура

Роскошный двухэтажный дом в стиле Райт с SPA-блоком, бассейном и панорамным остеклением. Профессиональное зонирование просторных помещений для жизни и отдыха дает высокий уровень приватности для жильцов и гостей.

О проекте

  • Площадь - 541м2
  • Количество комнат - 7 комнат
  • Этажность - 2 этажа
  • SPA-комплекс. Высокий уровень приватности для жильцов и гостей

Кухня-гостиная со вторым светом и панорамным остеклением выходит на террасу с навесом.

В отделке фасадов использован керамогранит и декоративные реечные панели из ДПК.

На первом этаже помимо гостиной расположены две гостевые комнаты и игровая, а на втором этаже две большие детские спальни и мастер-блок.

Планировка

1 этаж

1. Прихожая - 9.5м2

2. Холл - 25.0м2

3. Кухня-гостиная - 82.9м2

4. Кладовая - 4.5м2

5. Кладовая - 8.0м2

6. Гардероб - 10.1м2

7. Постирочная - 9.0м2

8. Котельная - 12.2м2

9. Санузел - 7.0м2

10. Игровая - 18.7м2

11. Спальня - 18.4м2

12. Спальня - 18.4м2

13. Коридор - 36.0м2

14. Бассейн - 69.4м2

15. Раздевалка с душевой - 17.4м2

16. Санузел - 3.1м2

17. Парная - 6.9м2

18. Техническое помещение - 3.5м2

19. Терраса (коэф. 0.3) - 9.5м2

20. Навес для автомобилей (коэф. 0.3) - 15.2м2

21. Терраса (коэф. 0.3) - 6.3м2

22. Хоз. помещение - 12.1м2

Итого:- 403.1м2

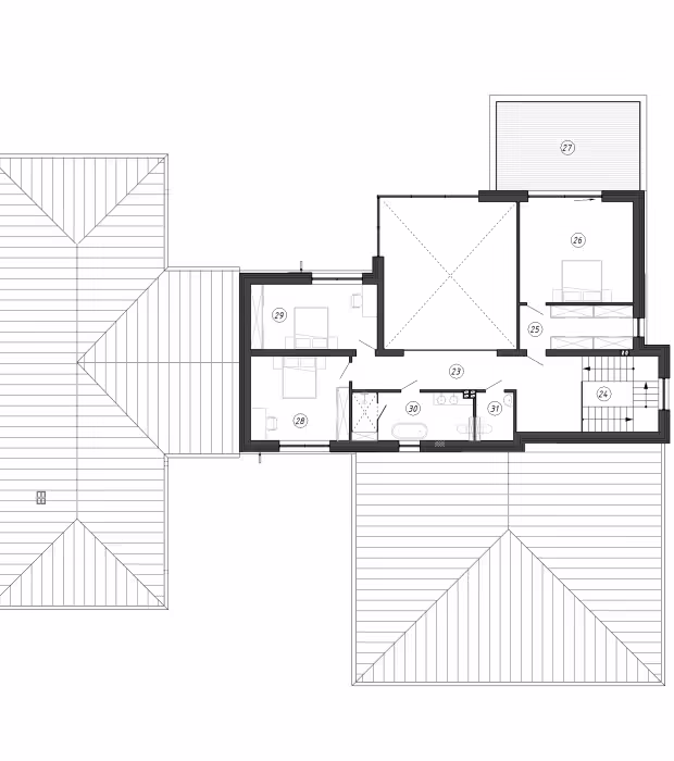
2 этаж

23. Холл - 25.0м2

24. Лестница - 13.0м2

25. Гардеробная - 11.3м2

26. Спальня - 25.7м2

27. Терраса (коэф. 0.3) - 8.6м2

28. Спальня - 18.7м2

29. Спальня - 18.6м2

30. Санузел - 13.1м2

31. Санузел - 4.1м2

Итого:- 138.1м2

Дизайн

Дизайн-проект DS541&SPA

Консультация
по индивидуальному
проектированию.

Или позвоните нам сами +375296283628

Похожие решения.

Загородный дом Hi267
267m2, 4 комнаты, 2 этажа
Загородный дом Hi630
630m2, 7 комнат, 2 этажа
Загородный дом Hi226 ind.
226m2, 4 комнаты, 1 этаж
Загородный дом Hi374 ind.
374m2, 7 комнат, 2 этажа